Про комплекс
Генеральний план
Інфраструктура
Технологія і комплектація
Галерея
Девелопери проекту
Дозвільна документація
Відділ сервісу
Квартири
1-кімнатні
2-кімнатні
Вибір за параметрами
Акції
Новини
Контакти
+380 (67) 990-22-22
ua
ru
Головна
/
Квартири
/
1 кімнатна
1 кімнатна
Отримати пропозицію
Забронювати
Розташування на поверсі
Розташування на генплані
Будинок
3
Секція
4
Поверх
7
Характеристики
Кімнат
1
Рівнів
1
Загальна площа
57.9
Житлова площа
17.13
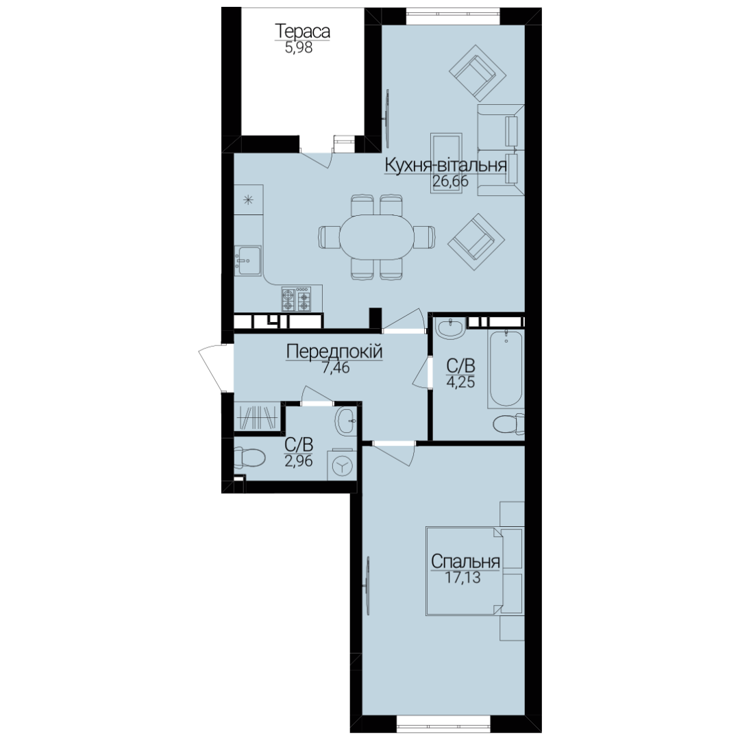
Планування
Передпокій
7,46
Санвузол
4,25
Санвузол
2,96
Спальня
17,13
Кухня-вітальня
26,12
Тераса
5,98
Завантажити PDF
Надрукувати
Відправити на e-mail
Квартири
Схожі квартири
Однокімнатні апартаменти 1Р/М
Загальна площа
38.32 м2
Житлова площа
16.5 м2
Однокімнатні апартаменти С-2
Загальна площа
24.2 м2
Житлова площа
15.64 м2
Однокімнатні апартаменти С-1
Загальна площа
21.13 м2
Житлова площа
19.97 м2
1 кімнатна
Загальна площа
38.83 м2
Житлова площа
13.49 м2
1 кімнатна
Загальна площа
24.24 м2
Житлова площа
16.07 м2
1 кімнатна
Загальна площа
38.83 м2
Житлова площа
13.49 м2
Контакти
Зворотній зв'язок
Відділ продажу
Адреса:
смт. Гостомель, вул. Б.Хмельницького,1-з
Телефон:
+380 (67) 990-22-22
E-Mail:
sales@gr.kiev.ua
Проїзд:
від ст. метро "Академмістечко"
марш. No 381, 389, 392, 424, 816
Режим роботи:
Вт-Сб: з 11:00 до 16:00
Розташування ЖК
Адреса:
смт. Гостомель, вул. Б. Хмельницького 1-З
Телефон:
+380 (67) 990-22-22
E-Mail:
sales@gr.kiev.ua
Проїзд:
від ст. метро "Академмістечко"
марш. No 389, 388
з Бучі (центр, залізн. станція)
марш. No 15, 16, 23
Отримати консультацію
Ваше ім'я *
Номер телефону *
Ваш email *
Повідомлення
Надіслати
Меню
Замовити дзвінок
Ваше ім'я *
Номер телефону *
Натискаючи кнопку «Замовити дзвінок» ви підтверджуєте свою згоду на
обробку персональних даних
Надіслати
Залишити заявку
Ваше ім'я *
Номер телефону *
Email
Надіслати
Яка квартира вас цікавить
Ваше ім'я *
Номер телефону *
Повідомлення
Надіслати
Дякуємо за Ваш запит
Наш менеджер зателефонує вам найближчим часом
Файл відправлено
Якщо лист відстуній перевірьте папку "Спам"
Надіслати файл
Ваша пошта *
Надіслати
Цей сайт використовує cookie-файли для більш комфортної роботи користувача. Продовжуючи переглядати сайт, Ви погоджуєтеся на використання cookie.
Ок